Negozio / Locale commerciale in vendita - Bolzano don bosco - firmiano Attività Commerciale rif:86467318

Mq.
43
Prezzo
205000.00
Codice
86467318

Attività Commerciale Bolzano don bosco - firmiano

Codice 86467318
Tipo Offerta Vendita
Provincia 021
Localita Bolzano don bosco - firmiano
Piano 0
Dimensioni 43
Prezzo 205000.00

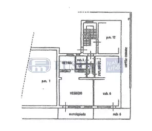
In via Resia, una delle vie più trafficate e visibili di Bolzano, proponiamo in vendita un negozio al piano terra, con ottima esposizione su strada e vetrina fronte marciapiede.L’immobile, completamente ristrutturato nel 2023, si compone di un ambiente principale di vendita, un retrobottega, un bagno e un locale di servizio, con accesso anche dal cortile condominiale. Al piano interrato un magazzino.La posizione garantisce massima visibilità e passaggio pedonale e veicolare costante, rendendolo ideale per diverse tipologie di attività commerciali, studi o showroom.La proprietà vende le mura, offrendo un ottimo investimento nel mercato immobiliare commerciale di Bolzano.

Immobile inserito da Agenzia Immobiliare Fusina

Richiedi informazioni

Inserisci i tuoi dati sarai contattato al più presto dall'inserzionista.

I dati da Lei forniti compilando questa scheda potranno essere utilizzati da EELImedia sas di Della Lucia Ennio & C. , titolare del presente trattamento, al fine di sottoporre alla Sua attenzione proposte ed informazioni commerciali, scientifiche, sondaggi di opinione, nel rispetto del Dlgs 30 giugno 2003 nr. 196 (Codice della Privacy). I suoi dati non saranno oggetto di diffusione a terzi. L`informazione completa relativa al trattamento dei dati personali, che integra la presente informativa essenziale, come anche tutti i diritti dell`interessato sono pubblicati sul nostro sito web nella pagina Informativa Privacy